Casa di corte in vendita

Spresiano, P.za Luciano Rigo
€ 340.000
9 locali 9 locali
480 Mq 480 Mq
4 bagni 4 bagni

Casa di corte in vendita

Spresiano, P.za Luciano Rigo

Descrizione annuncio

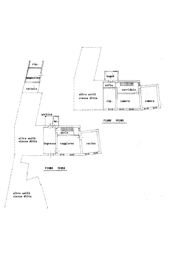
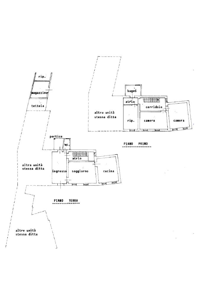
VENDESI IN PIAZZA A SPRESIANO COMPLESSO IMMOBILIARE DI 4 UNITA’

Superficie: 460mq calpestabili + 200mq di scoperto
Piano: Terra e primo
Unità: 3 residenziali + 1 commerciale

Si propone in vendita intero compendio immobiliare composto da 4 unità, ceduto esclusivamente in un’unica soluzione. Il tutto composto da due porzioni di casa, un appartamento, un negozio con un aggiuntivo scoperto di fronte e sul retro.

Caratteristiche principali:
In centro al paese
Ottima metratura

Altri dettagli:
Situato in centro al paese, in zona ben servita e vicina a tutti i principali servizi.
Ideale per investitori e imprese che cercano un’opportunità in zona strategica.

Per ulteriori informazioni o per fissare una visita, contattaci al 0422.1571426

Mostra tutto

Nelle vicinanze

Trasporto pubblico Trasporto pubblico
stazione di Spresiano
stazione di Spresiano
660 m
Scuole Scuole
Scuole
240 m
I.C. Spresiano, Scuola primaria Italo Calvino
240 m
Scuola secondaria di I grado E. Lovarini
700 m
Scuola elementare
1,9 Km
Scuola dell'infanzia "Elettra Adami Martini"
2,1 Km
Supermercati Supermercati
Despar
160 m
Coop Spresiano
1,4 Km
Maxì
2,7 Km
Negozi Negozi
Spaccio F.lli Campagnolo
1,9 Km
Bigolin
2,5 Km
Biasi Tarcisio
2,6 Km
Bar Bar
Bar
20 m
Borgo Nuovo
60 m
Wine Bar Feltrin
230 m
Discoteca Odissea Fun City
1,0 Km
Bea Vita
1,8 Km
Ristoranti Ristoranti
Trattoria Alla Stazione
670 m
Visual
890 m
Al Scarpon
1,1 Km
Ristorante Da Nano
1,9 Km
Pizzeria Tandem
2,4 Km
Mostra tutto

Caratteristiche

Rif.:
61186795
Piano:
Su più livelli di 2
Totale piani:
2
Posti auto:
2
Terrazzi:
1
Camere da letto:
6
Mostra tutto
Prezzo Prezzo
€ 340.000
Rata mutuo Rata mutuo
€ 1.588 / mese
Spese annue Spese annue
€ 0
Proponi il tuo prezzoProponi il tuo prezzo

Classe Energetica

G
G
G
G
G
G
G
G
G
EP globale non rinnovabile:
232.12 kW h/m² anno
EP globale rinnovabile:
232.12 kW h/m² anno
EP invernale del fabbricato:
EP estiva del fabbricato:
Anno di costruzione:
1920
Riscaldamento:
Autonomo
Tipo impianto:
A radiatori
Tipo alimentazione:
Metano

Ti interessa visionare l'immobile?

Fissa un appuntamento  Fissa un appuntamento

Richiedi informazioni

Clicca su Leggi per aprire l'informativa
* Questi campi sono obbligatori

Calcola il tuo mutuo

Semplice e senza impegno
Anticipo

( % )
Mutuo

( % )

pochi semplici passi

inserisci i tuoi dati
Questionario completato
Grazie per aver richiesto un appuntamento senza impegno con un nostro Consulente del Credito e Assicurativo.

Hai inserito correttamente tutti i dati necessari e a breve riceverai una e-mail con un link da convalidare per inviare i tuoi dati.
Affiliato
Immobiliare Sessanta Sas
Via Guglielmo Marconi, 2 31027 Spresiano (TV)

Il nostro staff


  • Alex Colmaor
    Responsabile

  • Manuel Calesso
    Collaboratore

  • Boutaina Nadir
    Coordinatrice

  • Davide Zussa
    Affiliato
Via Guglielmo Marconi, 2 31027 Spresiano (TV)
Zona: Spresiano Maserada
Mostra su mappa
Affiliato
Immobiliare Sessanta Sas
Via Guglielmo Marconi, 2 31027 Spresiano (TV)

2026 Tecnocasa Franchising S.p.A. - P. IVA 08365160152 - Via Monte Bianco 60/A 20089 Rozzano (MI). Ogni agenzia ha un proprio titolare ed è autonoma. Privacy policy | Policy utilizzo | Cookie policy