Trilocale in vendita

Spresiano, Via Tofane
€ 135.000
3 locali 3 locali
80 Mq 80 Mq
1 bagno 1 bagno

Trilocale in vendita

Spresiano, Via Tofane

Descrizione annuncio

VENDESI A SPRESIANO APPARTAMENTO CON DUE CAMERE DA LETTO

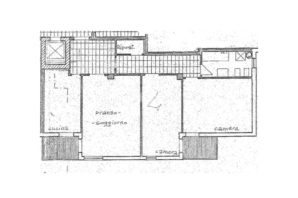
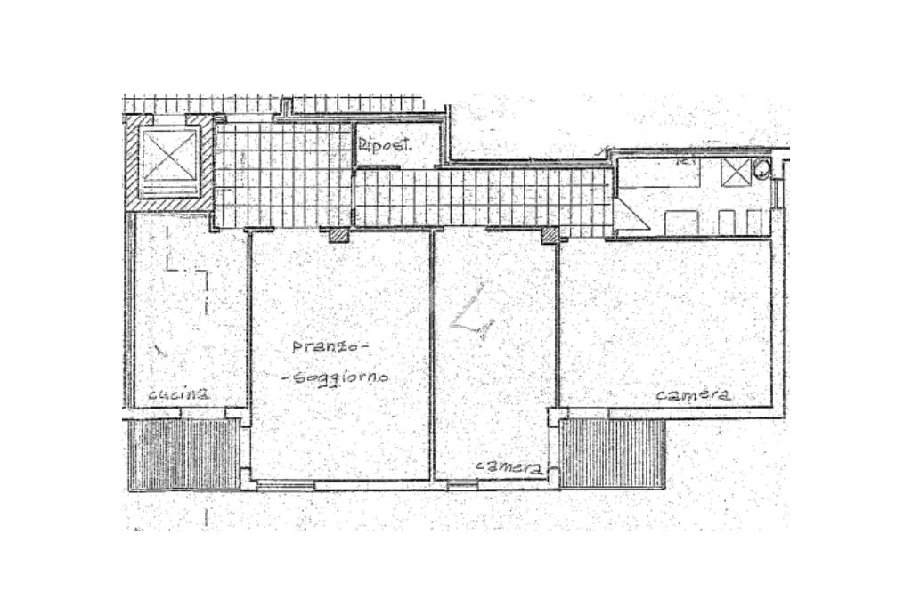
Superficie: 80 mq calpestabili
Piano: Terzo e ultimo
Camere da letto: 2
Bagni: 1
Balconi: 2 (+ terrazza condominiale)

Spazioso e accogliente appartamento con ascensore al terzo e ultimo piano di un edificio situato in zona centrale al paese.
La soluzione perfetta per chi cerca un ambiente luminoso e spazioso, con tutti i comfort.

Caratteristiche principali:
Metratura generosa
Cucina e soggiorno separati
Riscaldamento autonomo (+ stufa)
Garage e cantina di proprietà

Altri dettagli:
Situato in zona ben servita e vicina a tutti i principali servizi.
Perfetto per famiglie, coppie o per chi cerca un ambiente spazioso in zona centrale.

Per ulteriori informazioni o per fissare una visita, contattaci al 0422.1571426

Mostra tutto

Nelle vicinanze

Trasporto pubblico Trasporto pubblico
stazione di Spresiano
stazione di Spresiano
1,0 Km
Scuole Scuole
I.C. Spresiano, Scuola primaria Italo Calvino
170 m
Scuole
170 m
Scuola secondaria di I grado E. Lovarini
1,1 Km
Scuola elementare
2,3 Km
Scuola dell'infanzia "Elettra Adami Martini"
2,5 Km
Supermercati Supermercati
Despar
240 m
Coop Spresiano
1,0 Km
Maxì
2,4 Km
Negozi Negozi
Spaccio F.lli Campagnolo
1,5 Km
Bigolin
2,2 Km
Biasi Tarcisio
2,3 Km
Bar Bar
Borgo Nuovo
350 m
Wine Bar Feltrin
380 m
Bar
420 m
Discoteca Odissea Fun City
1,2 Km
Bea Vita
1,5 Km
Ristoranti Ristoranti
Al Scarpon
1,0 Km
Visual
1,0 Km
Trattoria Alla Stazione
1,1 Km
Ristorante Da Nano
2,1 Km
Pizzeria Tandem
2,6 Km
Mostra tutto

Caratteristiche

Rif.:
61134462
Piano:
3 di 3 con ascensore (ultimo Piano)
Box:
1
Posti auto:
1
Terrazzi:
2
Camere da letto:
2
Mostra tutto
Prezzo Prezzo
€ 135.000
Rata mutuo Rata mutuo
€ 622 / mese
Spese annue Spese annue
€ 1.200
Proponi il tuo prezzoProponi il tuo prezzo

Classe Energetica

D
D
D
D
D
D
D
D
D
EP globale non rinnovabile:
110.20 kW h/m² anno
EP globale rinnovabile:
110.20 kW h/m² anno
EP invernale del fabbricato:
EP estiva del fabbricato:
Anno di costruzione:
1970
Riscaldamento:
Autonomo
Tipo impianto:
A stufa
Tipo alimentazione:
Altro

Ti interessa visionare l'immobile?

Fissa un appuntamento  Fissa un appuntamento

Richiedi informazioni

* Questi campi sono obbligatori

Calcola il tuo mutuo

Semplice e senza impegno
Anticipo

( % )
Mutuo

( % )

pochi semplici passi

inserisci i tuoi dati
Questionario completato
Grazie per aver richiesto un appuntamento senza impegno con un nostro Consulente del Credito e Assicurativo.

Hai inserito correttamente tutti i dati necessari e a breve riceverai una e-mail con un link da convalidare per inviare i tuoi dati.
Affiliato
Immobiliare Sessanta Sas
Via Guglielmo Marconi, 2 31027 Spresiano (TV)

Il nostro staff


  • Alex Colmaor
    Responsabile

  • Manuel Calesso
    Collaboratore

  • Boutaina Nadir
    Coordinatrice

  • Yady Patricia Ysaza Caceres
    Collaboratrice

  • Davide Zussa
    Affiliato
Via Guglielmo Marconi, 2 31027 Spresiano (TV)
Zona: Spresiano Maserada
Mostra su mappa
Affiliato
Immobiliare Sessanta Sas
Via Guglielmo Marconi, 2 31027 Spresiano (TV)

2025 Tecnocasa Franchising S.p.A. - P. IVA 08365160152 - Via Monte Bianco 60/A 20089 Rozzano (MI). Ogni agenzia ha un proprio titolare ed è autonoma. Privacy policy | Policy utilizzo | Cookie policy