Porzione di bifamiliare in vendita

Maserada Sul Piave, Via Spartaco Lantini
€ 85.000
3 locali 3 locali
110 Mq 110 Mq
1 bagno 1 bagno

Porzione di bifamiliare in vendita

Maserada Sul Piave, Via Spartaco Lantini

Descrizione annuncio

Porzione di testa con scoperto privato e magazzini a Maserada sul Piave - 85.000

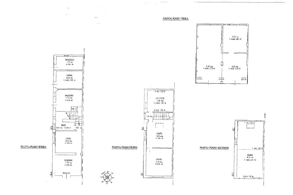
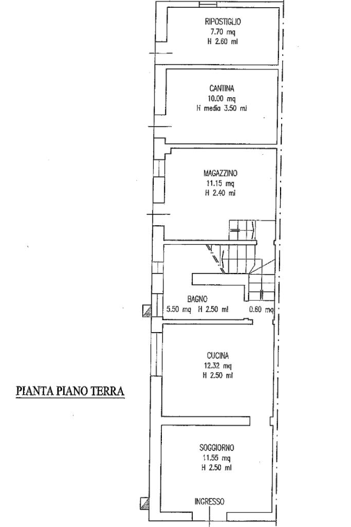
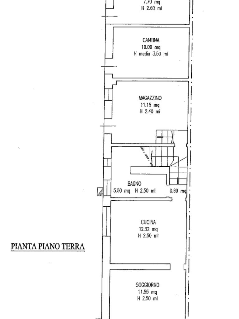
A Maserada sul Piave, in un contesto tranquillo ma ben collegato, proponiamo in vendita una porzione di testa indipendente risalente agli anni '50, con ampio scoperto privato e locali accessori. L'abitazione si sviluppa su tre livelli per un totale di circa 110 mq ed è circondata da uno scoperto esclusivo di circa 250 mq, ideale per chi desidera uno spazio verde da vivere ogni giorno, perfetto per un giardino, un orto o semplicemente per godersi la tranquillità all'aperto.

All'interno, la casa si apre su una zona giorno composta da soggiorno e cucina separata abitabile. Al piano superiore si trovano due camere comunicanti, mentre al piano terra è presente un bagno finestrato. Al terzo livello, tramite scala interna, si accede a una soffitta di circa 40 mq, che può essere utilizzata come spazio aggiuntivo da adattare alle proprie esigenze. Completano la proprietà due magazzini adiacenti, che offrono ulteriore spazio utile come rimessa, deposito attrezzi o per un possibile ampliamento degli ambienti esistenti. Le finiture includono serramenti in legno con vetrocamera, pavimentazione in piastrelle nella zona giorno e in legno nelle camere.

La casa, pur mantenendo le condizioni originali, rappresenta un'ottima occasione per chi cerca una soluzione indipendente da personalizzare, con grandi potenzialità sia per uso residenziale che come investimento. La posizione, riservata ma a breve distanza dai principali servizi, rende l'immobile particolarmente interessante anche per chi desidera una casa con spazi esterni mantenendo un budget contenuto.

La posizione è strategica: la fermata dell'autobus si trova a soli 300 metri, la filiale Unicredit dista circa 1 km e il supermercato è raggiungibile in 1,3 km, rendendo questa soluzione ideale per chi desidera vivere in un contesto tranquillo ma ben servito, perfetto anche per famiglie.

L'indirizzo dell'immobile è totalmente indicativo per tutelare la privacy del cliente.

Per info su questo immobile contatta il n: 04221571426 o scrivi un e-mail all'indirizzo: tvhn8

Mostra tutto

Nelle vicinanze

Trasporto pubblico Trasporto pubblico
Trasporto pubblico
100 m
Ricariche auto elettriche Ricariche auto elettriche
Municipio di Breda di Piave | enelX
3,0 Km
Scuole Scuole
Scuola Primaria Statale Giovanni Pascoli
180 m
Scuola Secondaria Statale di Primo Grado Don Milani
270 m
Scuole
1,6 Km
Farmacia Farmacia
Farmacia Crepet
580 m
Farmacia di Varago
1,2 Km
Supermercati Supermercati
Visotto
270 m
Alì
310 m
Cuor di Crai
3,0 Km
Negozi Negozi
LUNA
480 m
Feltrin Abbigliamento
920 m
Bar Bar
Caffè Centrale
300 m
Tannino
710 m
Bar
930 m
Ristoranti Ristoranti
Pizza Gallery
650 m
Mi ti e i Ponci
730 m
Antica Osteria Zanatta
1,5 Km
Hotel Ristorante Dotto
1,7 Km
Pizzeria Futura
1,8 Km
Mostra tutto

Caratteristiche

Rif.:
61093852
Piano:
Su più livelli di 3
Totale piani:
3
Posti auto:
1
Camere da letto:
2
Arredamento:
Assente
Mostra tutto
Prezzo Prezzo
€ 85.000
Rata mutuo Rata mutuo
€ 392 / mese
Spese annue Spese annue
€ 0
Proponi il tuo prezzoProponi il tuo prezzo

Classe Energetica

G
G
G
G
G
G
G
G
G
EP globale non rinnovabile:
253.74 kW h/m² anno
EP globale rinnovabile:
253.74 kW h/m² anno
EP invernale del fabbricato:
EP estiva del fabbricato:
Anno di costruzione:
1950
Riscaldamento:
Autonomo
Tipo impianto:
A stufa
Tipo alimentazione:
Metano

Ti interessa visionare l'immobile?

Fissa un appuntamento  Fissa un appuntamento

Richiedi informazioni

* Questi campi sono obbligatori

Calcola il tuo mutuo

Semplice e senza impegno
Anticipo

( % )
Mutuo

( % )

pochi semplici passi

inserisci i tuoi dati
Questionario completato
Grazie per aver richiesto un appuntamento senza impegno con un nostro Consulente del Credito e Assicurativo.

Hai inserito correttamente tutti i dati necessari e a breve riceverai una e-mail con un link da convalidare per inviare i tuoi dati.
Affiliato
Immobiliare Sessanta Sas
Via Guglielmo Marconi, 2 31027 Spresiano (TV)

Il nostro staff


  • Alex Colmaor
    Responsabile

  • Manuel Calesso
    Collaboratore

  • Boutaina Nadir
    Coordinatrice

  • Yady Patricia Ysaza Caceres
    Collaboratrice

  • Davide Zussa
    Affiliato
Via Guglielmo Marconi, 2 31027 Spresiano (TV)
Zona: Spresiano Maserada
Mostra su mappa
Affiliato
Immobiliare Sessanta Sas
Via Guglielmo Marconi, 2 31027 Spresiano (TV)

2025 Tecnocasa Franchising S.p.A. - P. IVA 08365160152 - Via Monte Bianco 60/A 20089 Rozzano (MI). Ogni agenzia ha un proprio titolare ed è autonoma. Privacy policy | Policy utilizzo | Cookie policy