Trilocale in vendita

Arcade, Via Madonnetta
€ 70.000
3 locali 3 locali
70 Mq 70 Mq
1 bagno 1 bagno

Trilocale in vendita

Arcade, Via Madonnetta

Descrizione annuncio

PER INVESTIMENTO (APPARTAMENTO VENDUTO LOCATO, CON INQUILINI DENTRO)

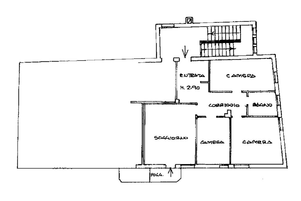
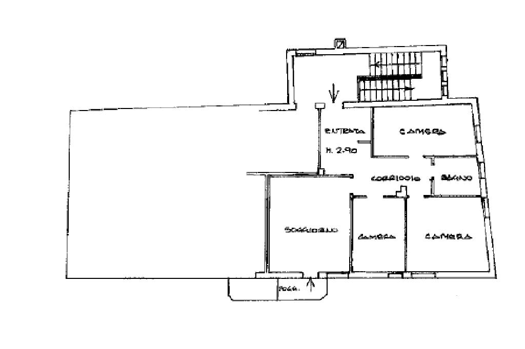
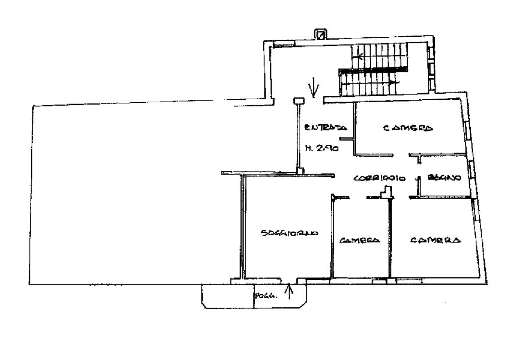
Arcade: proponiamo appartamento trilocale per investimento al terzo piano senza ascensore. Situato in una palazzina edificata nel 1960 composta da sole 6 unità abitative. L'immobile al suo interno presenta un soggiorno spazioso con acesso a una terrazza. Cucina abitabile. Proseguendo per il disimpegno troviamo la zona notte, ove vi sono un bagno finestrato con vasca, una camera singola ed infine una camera matrimoniale. L'appartamento dispone di impianto di condizionamento e di impianto di riscaldamento centralizzato, a radiatori. La pavimentazione risulta piastrellata su tutta la superficie, fatta eccezione per le camera matrimoniale dove è in legno. A concludere la proprietà c'è il garage. L'immobile è locato in zona residenziale centrale a due passi dalla piazza di Arcade, comodo quindi a tutti i servizi principali: a 130 m dalla fermata del bus, a 480 m dalla farmacia, a 450 m dalla scuola.

L'indirizzo dell'immobile è totalmente indicativo per tutelare la privacy del cliente. Per info su questo immobile contatta il n: 04221582409 o scrivi un'e-mail all'indirizzo: tvhn8

Mostra tutto

Nelle vicinanze

Scuole Scuole
Scuole
130 m
Ic Arcade
270 m
Scuola Elementare di Cusignana
2,5 Km
I.C. Spresiano, Scuola primaria Italo Calvino
2,9 Km
Supermercati Supermercati
Maxì
340 m
Coop Spresiano
1,7 Km
Despar
2,9 Km
Negozi Negozi
Biasi Tarcisio
480 m
Bigolin
600 m
Spaccio F.lli Campagnolo
1,2 Km
Bar Bar
Centrale
40 m
Bar Bambi
150 m
Bar H
380 m
Bea Vita
1,3 Km
Osteria Da Ciodet
1,9 Km
Ristoranti Ristoranti
Al Ciaro de Luna
270 m
Osteria Biancanil
1,7 Km
Trattoria Da Paolo
2,5 Km
Visual
2,9 Km
Mostra tutto

Caratteristiche

Rif.:
61052135
Piano:
3 di 3 (ultimo Piano)
Box:
1
Terrazzi:
1
Camere da letto:
2
Arredamento:
Completo
Mostra tutto
Prezzo Prezzo
€ 70.000
Rata mutuo Rata mutuo
€ 324 / mese
Spese annue Spese annue
€ 840
Proponi il tuo prezzoProponi il tuo prezzo

Classe Energetica

F
F
F
F
F
F
F
F
F
EP globale non rinnovabile:
83.78 kW h/m² anno
EP globale rinnovabile:
83.78 kW h/m² anno
EP invernale del fabbricato:
EP estiva del fabbricato:
Anno di costruzione:
1960
Riscaldamento:
Centralizzato
Tipo impianto:
A radiatori
Tipo alimentazione:
Metano

Ti interessa visionare l'immobile?

Fissa un appuntamento  Fissa un appuntamento

Richiedi informazioni

* Questi campi sono obbligatori

Calcola il tuo mutuo

Semplice e senza impegno
Anticipo

( % )
Mutuo

( % )

pochi semplici passi

inserisci i tuoi dati
Questionario completato
Grazie per aver richiesto un appuntamento senza impegno con un nostro Consulente del Credito e Assicurativo.

Hai inserito correttamente tutti i dati necessari e a breve riceverai una e-mail con un link da convalidare per inviare i tuoi dati.
Affiliato
Immobiliare Sessanta Sas
Via Guglielmo Marconi, 2 31027 Spresiano (TV)

Il nostro staff


  • Alex Colmaor
    Collaboratore

  • Manuel Calesso
    Collaboratore

  • Boutaina Nadir
    Coordinatrice

  • Yady Patricia Ysaza Caceres
    Collaboratrice

  • Davide Zussa
    Affiliato
Via Guglielmo Marconi, 2 31027 Spresiano (TV)
Zona: Spresiano Maserada
Mostra su mappa
Affiliato
Immobiliare Sessanta Sas
Via Guglielmo Marconi, 2 31027 Spresiano (TV)

2025 Tecnocasa Franchising S.p.A. - P. IVA 08365160152 - Via Monte Bianco 60/A 20089 Rozzano (MI). Ogni agenzia ha un proprio titolare ed è autonoma. Privacy policy | Policy utilizzo | Cookie policy